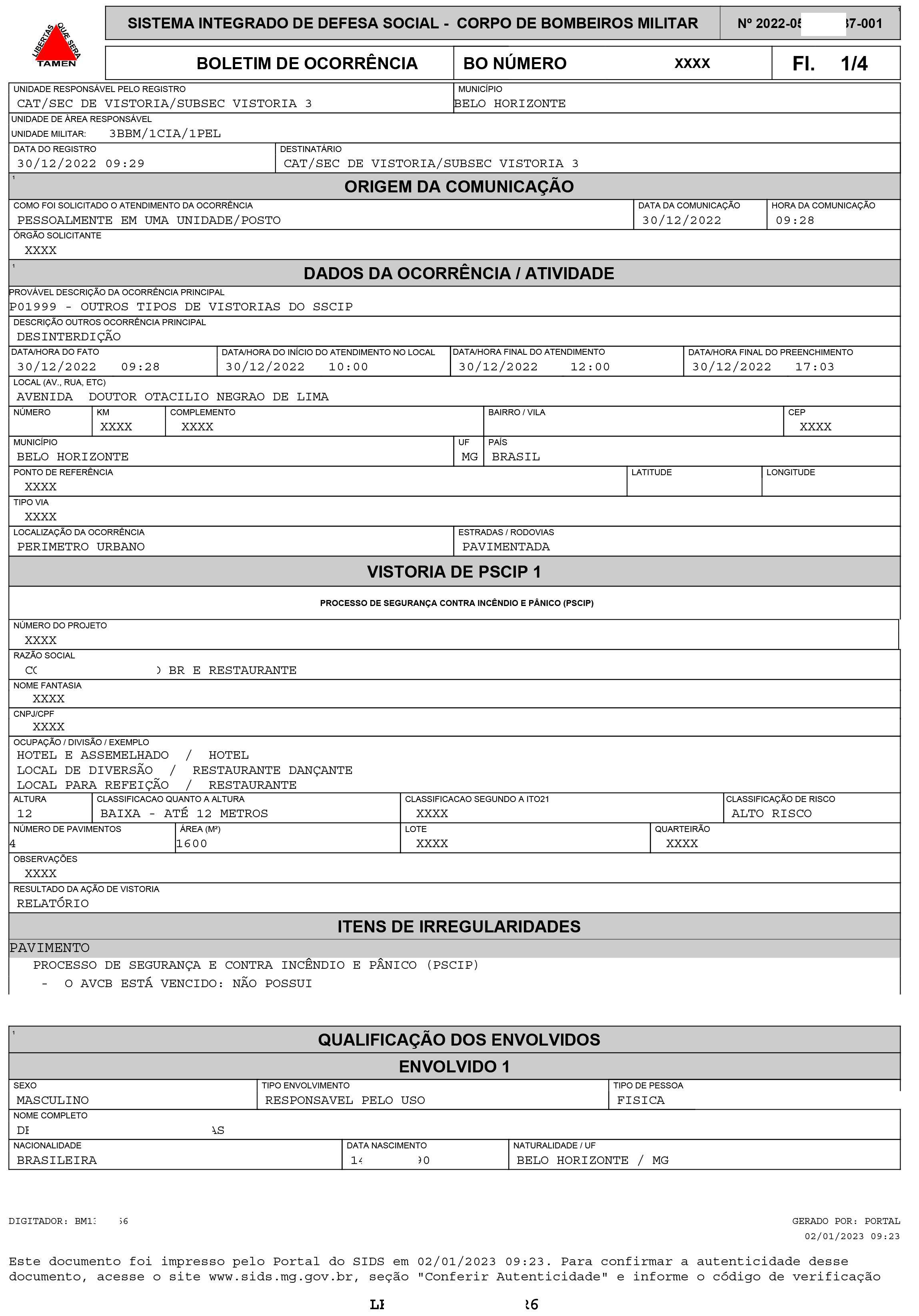
Desinterdição e Prorrogação de Prazo
Resposta do pedido de Desinterdição e Prorrogação de prazo junto ao Corpo de Bombeiros de Minas Gerais
O que é?
O que é a desinterdição?
Revogação da pena de interdição aplicada sempre que houver situação de risco iminente devidamente fundamentada, podendo ser total ou parcial.
O que é a prorrogação de prazo?
Na impossibilidade de cumprimento do prazo de 60 (sessenta) dias para sanar as irregularidades (apresentar o projeto contra incêndio PSCIP e Liberação em vistoria AVCB), em cumprimento ao Art. 4º da Lei Estadual 14.130, o responsável técnico, proprietário ou representante legal do imóvel poderão requerer à autoridade prevista mediante petição fundamentada, a prorrogação de prazo para adequação da edificação.
Somente serão aceitas solicitações de prorrogação de prazos para correção de irregularidades quando houver justificado motivo e cronograma de execução.
A critério do Corpo de Bombeiros, o prazo a que se refere este artigo poderá sofrer nova prorrogação, mediante petição fundamentada do interessado.
Exigência
Quando é necessária a desinterdição parcial junto ao Corpo de Bombeiros de Minas Gerais?
Sempre que o local for interditado por meio de selos e lacres do Corpo de Bombeiros, para que o responsável pelo imóvel possa entrar no local para realizar as devidas ações de eliminação do risco iminente constatado e apontado pelo Corpo de Bombeiros após fiscalização.
Quando é necessária a desinterdição total junto ao Corpo de Bombeiros de Minas Gerais?
Sempre que o local ainda possuir selos e lacres do Corpo de Bombeiros, para que o responsável pelo imóvel possa voltar a funcionar após a eliminação do risco iminente constatado e apontado pelo Corpo de Bombeiros após fiscalização.
Quando é necessária a prorrogação de prazo junto ao Corpo de Bombeiros de Minas Gerais?
Quando a edificação é fiscalizada pelo Corpo de Bombeiros de Minas Gerais e não apresenta a documentação exigida, sendo elas:
Prazo
Qual o prazo?
Será homologado o deferimento da solicitação em até 10 (dez) dias úteis subsequentes à data do protocolo.
Multa
A solicitação de desinterdição e prorrogação de prazo junto ao Corpo de Bombeiros de Minas Gerais anula a multa?
Não. A solicitação de desinterdição e prorrogação de prazo não anula a multa já aplicada, devendo neste caso, somente ser emitido o AVCB após a confirmação do pagamento desta, ou seja, se a multa não for paga a edificação permanecer irregular, e exposta a outras multas ou até mesmo nova interdição para regularização.
Recomendação
Assim que receber o Boletim de Ocorrência (B.O.), recomenda-se entrar em contato imediatamente, visto a necessidade de providenciar e anexar toda a documentação necessária, antes do esgotamento do prazo inicial do Corpo de Bombeiros de 60 (sessenta) dias conforme Art. 4º da Lei Estadual 14.130.
Levi das Chagas Barroso Filho, Engenheiro.
CREA/MG: 238.647-D
Esta página foi editada pela última vez em 12 de janeiro de 2023.
Faça você mesmo o Pedido de Desinterdição junto Corpo de Bombeiros Militar de Minas Gerais com o nosso exemplo
Documentação completa em excel para que você mesmo solicitar a desinterdição
Exemplo da documentação completa para que qualquer pessoa possa solicitar a desinterdição e prorrogação de prazo junto ao Corpo de Bombeiros Militar de Minas Gerais (CBMMG).
Levi das Chagas Barroso Filho, Engenheiro
CREA/MG: 238.647-D
E-mail: contato@chagasbarroso.com.br
Telefones:
031 3018-7001
Certificações

CREA-MG BOMBEIRO-MG IMEC-MG
© Todos os direitos reservados
2009 - 2025