ART
Anotação de Responsabilidade Técnica
A A.R.T. é o instrumento que define, para os efeitos legais, os responsáveis técnicos pela execução de obras ou prestação de serviços relativos às profissões abrangidas pelo Sistema CONFEA/CREA.
De acordo com a Resolução 1.025/09 do CONFEA, “nenhuma obra/serviço poderá ter início sem a competente Anotação de Responsabilidade Técnica”. Assim, o registro da A.R.T. deve ser efetuado antes do início da obra/serviço. Caso não tenha feito, para registrar a atividade cuja A.R.T. não se fez na época devida, para incorporá-la basta seguir os procedimentos definidos pela Resolução 1.050/13 do CONFEA. Esta incorporação é sujeita a taxa de análise e demanda análise por parte do CREA, o que demanda maior tempo para atendimento.
Nenhuma obra ou serviço poderá ter início sem a competente Anotação de Responsabilidade Técnica.
De acordo com o artigo 32 da Resolução 1.025/2009, a responsabilidade do recolhimento da taxa da A.R.T. é do profissional. Em casos de contrato com pessoa jurídica, cabe a esta o recolhimento.
Fonte: http://www.crea-mg.org.br/
Levi das Chagas Barroso Filho, Engenheiro.
CREA/MG: 238.647-D
Esta página foi atualizada pela última vez em 02 de abril de 2026.
Conteúdo para profissionais!
Nesta seção oferecemos exemplos reais de projetos e documentações técnicas, para auxiliar profissionais em início de carreira no aprendizado e na elaboração de projetos de Segurança Contra Incêndio e Pânico.
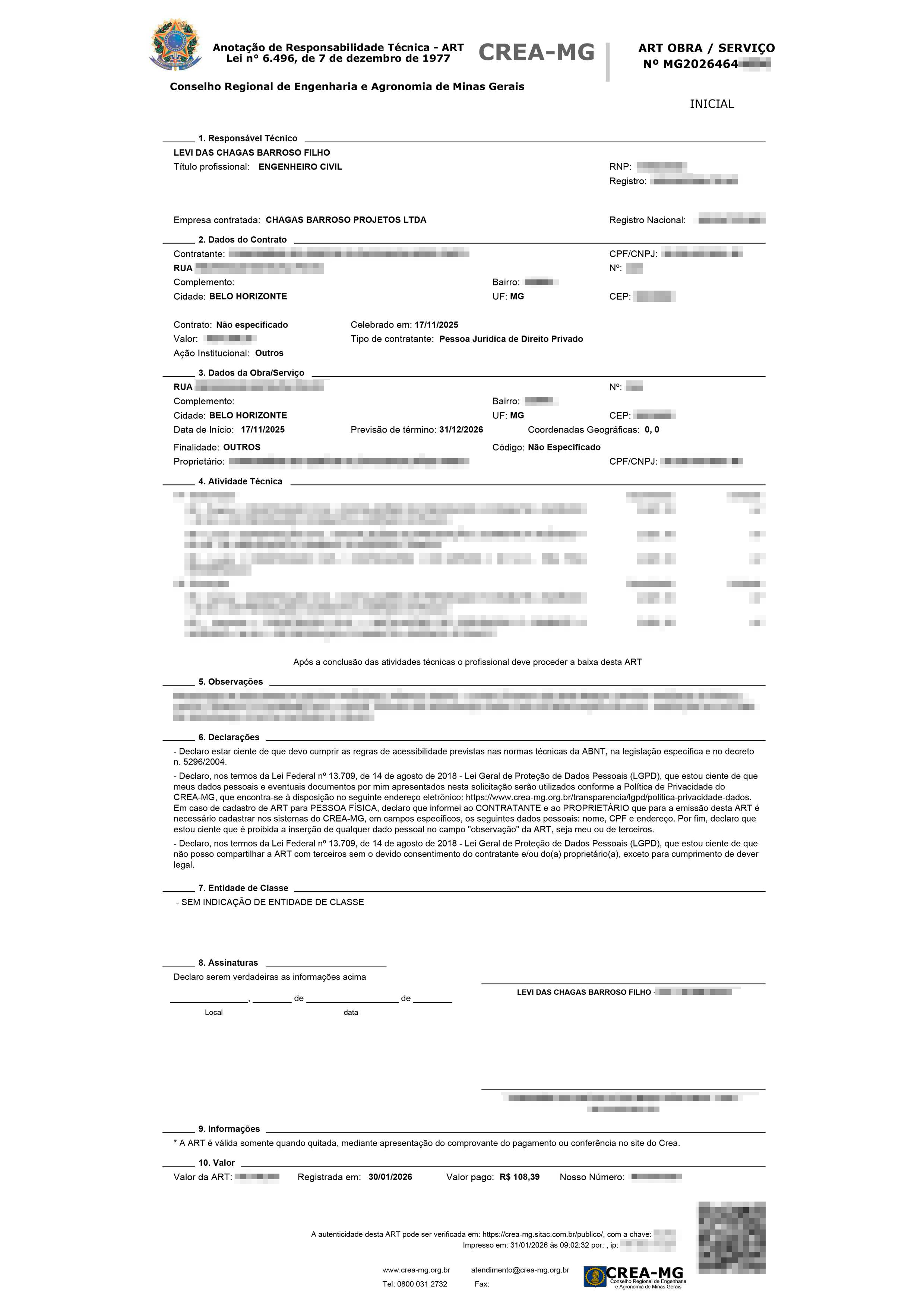
Exemplo 1
Preenchimento de uma
Anotação de Responsabilidade Técnica (ART)
(Atualização de Projeto, Laudos e Renovação de AVCB)
Exemplo para preenchimento corretamente
CARACTERÍSTICAS
REGISTRO DA ART
Utilize uma ART real deferida como referência profissional
Evite perder horas estruturando o documento do zero.
Com este modelo você terá acesso a um pedido real deferido, podendo utilizar como base para seus próprios projetos.
Exemplo 2
Preenchimento de uma
Anotação de Responsabilidade Técnica (ART)
(Renovação de AVCB)
Exemplo de preenchimento correto
CARACTERÍSTICAS
REGISTRO DA ART
Utilize uma ART real deferida como referência profissional
Evite perder horas estruturando o documento do zero.
Com este modelo você terá acesso a um pedido real deferido, podendo utilizar como base para seus próprios projetos.
Exemplo 3
Preenchimento de uma
Anotação de Responsabilidade Técnica (ART)
(Projetos PT, ou PTS, ou PTD, ou PET)
Exemplo para preenchimento corretamente
CARACTERÍSTICAS
REGISTRO DA ART
Utilize uma ART real deferida como referência profissional
Evite perder horas estruturando o documento do zero.
Com este modelo você terá acesso a um pedido real deferido, podendo utilizar como base para seus próprios projetos.
Exemplo 4
Preenchimento de uma
Anotação de Responsabilidade Técnica (ART)
(Evento de Risco Mínimo ou Baixo)
Exemplo para preenchimento corretamente
CARACTERÍSTICAS
REGISTRO DA ART
Utilize uma ART real deferida como referência profissional
Evite perder horas estruturando o documento do zero.
Com este modelo você terá acesso a um pedido real deferido, podendo utilizar como base para seus próprios projetos.
Exemplo 5
Preenchimento de uma
Anotação de Responsabilidade Técnica (ART)
(Laudo Técnico p/ PBH)
Exemplo para preenchimento corretamente da ART exigida pela Prefeitura de Belo Horizonte conforme Art. 1º do Decreto nº 11.998
CARACTERÍSTICAS
REGISTRO DA ART
Utilize uma ART real deferida como referência profissional
Evite perder horas estruturando o documento do zero.
Com este modelo você terá acesso a um pedido real deferido, podendo utilizar como base para seus próprios projetos.